faxwerk-styleflat-packmodern-designpanoramic-windows

Faxwerk Cabin 328×642

An architectural garden cabin pairing an enclosed glazed room with a sheltered veranda under one apex roof. Around 9 m² of floor-to-ceiling glass on two walls creates a bright retreat, whilst the covered outdoor space extends the living area. Built from Northern spruce posts with modular infill, it brings light, shelter, and refined holiday character to seasonal gardens.
Key specifications
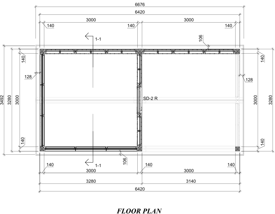
  • 6.42m x 3.28m external footprint
  • Distinctive post-and-beam aesthetics
  • 6 windows and 1 door included
  • 3.03m ridge height
  • Premium Nordic spruce structure

Contemporary Modular Cabin with Panoramic Views

Distinctive Modern Architecture

Defined by its sharp vertical and horizontal lines, the Faxwerk model creates a striking visual statement in any landscape. The structure is designed to maximize natural light, featuring a comprehensive glazing package that includes four FW-SH windows and two larger units (FW-MH, FW-ML), creating a bright and airy interior atmosphere suitable for a garden office, studio, or premium lounge.

Quality Construction

Built on a robust foundation of 95x70mm base beams, the structure utilizes high-grade Nordic spruce. The roof system features 44x145mm roof joists and 18mm roof boards, ensuring structural integrity and weather resistance. The distinctive gable roof design reaches a ridge height of 3.03m, providing generous internal headroom and efficient water runoff.

Inside and Out, Under One Roof

Around 9 m² of enclosed space is wrapped in glass on two sides, creating a bright room flooded with natural light, ideal for sleeping, relaxing, or seasonal living. The covered veranda offers an equal amount of sheltered outdoor space for dining, lounging, or simply enjoying the garden in comfort, protected from sun and rain.

Specifications

Width
328 cm
Height
303 cm
Length
642 cm
Area
9 m²
Terrace
9 m²
Rooms
1
Windows
6
Doors
1

Applications

Garden Retreat & Outdoor Living

Enhance your lifestyle by extending your living area into nature. Create a serene sanctuary for relaxation, reading, or yoga with our garden structures. Our durable timber decking, pergolas, and summer houses transform your garden into a functional outdoor living room. Experience the tranquility of natural wood and create a dedicated space for leisure and family enjoyment.

Home Office & Creative Studio

Create the perfect productive environment just steps from your home. Whether you need a distraction-free home office, an inspiring art studio, or a craft workshop, our solutions offer the ideal space. Choose from our range of ready-made garden buildings or utilize our premium timber materials to construct a bespoke workspace designed for year-round comfort and professional focus.

Modular Post & Beam Systems

Discover the ultimate versatility with our flexible post and beam systems. Designed for adaptability, these modular structures allow you to configure canopies, pergolas, and garden rooms to exact dimensions. Ideal for DIY enthusiasts and custom landscape designs, this system lets you combine standard modules to create unique outdoor structures that perfectly fit your specific spatial requirements and aesthetic vision.

Why choose Faxwerk Cabin 328×642?

Panoramic Windows

Includes a window package with 6 distinct units to maximize natural light intake.

Robust Roof Structure

Constructed with 44x145mm roof joists and 18mm roof boards for durability and load-bearing strength.

DIY-Friendly Design

Straightforward assembly process suitable for competent DIY enthusiasts with basic tools.

Frequently Asked Questions

The kit includes the complete timber structure, 44x145mm roof joists, 18mm roof boards, 95x70mm base beams, windows, and the entrance door.
The building is delivered as a knock-down kit, securely packed in moisture-resistant plastic foil for safe outdoor storage prior to assembly.
The structure sits on 95x70mm base beams. A level, solid foundation such as concrete pads, a slab, or screw piles is required to ensure structural stability.
No, we recommend treating the timber immediately after assembly with a high-quality wood preservative to protect against weathering.
The maximum height to the apex (ridge) of the roof is 3034 mm. The eave height (where the roof meets the walls) is 2192 mm.

Quality Materials Inside

Sawn Timber: Pine and Spruce for Construction

Sawn Timber: Pine and Spruce for Construction

Discover our high-quality sawn timber from pine and spruce, ideal for construction with natural moisture, eco-friendly properties, and versatile sizing options.

Glued (Laminated) Wooden Beams and Boards

Glued (Laminated) Wooden Beams and Boards

Discover glued wooden beams and boards made from pine and spruce, offering high moisture resistance, load capacity, and splinter-free handling for furniture, stairs, and windows.

Solid Glued (Laminated) Spruce Panels

Solid Glued (Laminated) Spruce Panels

High-quality solid glued panels made from premium spruce, available in various thicknesses, lengths, and widths, with hand-planed and sorted finishes for superior quality.

BS 2482:2009 Certified Scaffold Boards

BS 2482:2009 Certified Scaffold Boards

Compliant with BS 2482:2009, our scaffolding boards feature metal plate clamping and come in multiple sizes for versatile construction applications.

Sawn Timber: Pine and Spruce for Construction

Sawn Timber: Pine and Spruce for Construction

Discover our high-quality sawn timber from pine and spruce, ideal for construction with natural moisture, eco-friendly properties, and versatile sizing options.

Glued (Laminated) Wooden Beams and Boards

Glued (Laminated) Wooden Beams and Boards

Discover glued wooden beams and boards made from pine and spruce, offering high moisture resistance, load capacity, and splinter-free handling for furniture, stairs, and windows.

Solid Glued (Laminated) Spruce Panels

Solid Glued (Laminated) Spruce Panels

High-quality solid glued panels made from premium spruce, available in various thicknesses, lengths, and widths, with hand-planed and sorted finishes for superior quality.

BS 2482:2009 Certified Scaffold Boards

BS 2482:2009 Certified Scaffold Boards

Compliant with BS 2482:2009, our scaffolding boards feature metal plate clamping and come in multiple sizes for versatile construction applications.

Other Wooden Houses

Faxwerk Cabin 328×328 Apex
Faxwerk

Faxwerk Cabin 328x328 Apex

A contemporary, architectural cabin with an exposed post-and-beam frame and traditional pitched roofline. Around 9 m² of enclosed storage brings calm, modern order to outdoor spaces. Built from Northern spruce posts with modular wall infill panels, the structure is precision-engineered for fast assembly and a refined, elevated finish that sits beautifully in both traditional and contemporary gardens.

Faxwerk Cabin 442x624cm
Faxwerk

Faxwerk Cabin 442x624cm

A premium holiday garden cabin designed around light and outdoor living. 12 m² enclosed area plus a 12 m² covered terrace creates a calm, flexible retreat for weekends away. Northern spruce post-and-beam frame with expansive floor-to-ceiling windows.

Faxwerk Cabin 328×328 Apex

Faxwerk Cabin 328x328 Apex

A contemporary, architectural cabin with an exposed post-and-beam frame and traditional pitched roofline. Around 9 m² of enclosed storage brings calm, modern order to outdoor spaces. Built from Northern spruce posts with modular wall infill panels, the structure is precision-engineered for fast assembly and a refined, elevated finish that sits beautifully in both traditional and contemporary gardens.

Faxwerk Cabin 442x624cm

Faxwerk Cabin 442x624cm

A premium holiday garden cabin designed around light and outdoor living. 12 m² enclosed area plus a 12 m² covered terrace creates a calm, flexible retreat for weekends away. Northern spruce post-and-beam frame with expansive floor-to-ceiling windows.